|
|
The Peninsula Bangkok
5*
|
| Об отеле | Номера | На карте |
Отель предлагает комфортабельные номера различных категорий, включая Suite.
В каждом номере:
интернет, телевизор, телефон, мини-бар, кондиционер, сейф, фен, халаты и тапочки, туалетные принадлежности.
Deluxe Balcony Room:
45 м2. Состоит из спальни с кроватью king-size или двумя кроватями twin, гардеробной, ванной комнаты, балкона. Максимальное размещение – 2 человека.
План номера
Проверить наличие мест и цены
Grand Deluxe Balcony Room:
45 м2. Состоит из спальни с кроватью king-size или двумя кроватями twin, зоны отдыха, гардеробной и балкона. Максимальное размещение – 2 человека.
План номера
Проверить наличие мест и цены
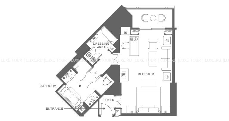
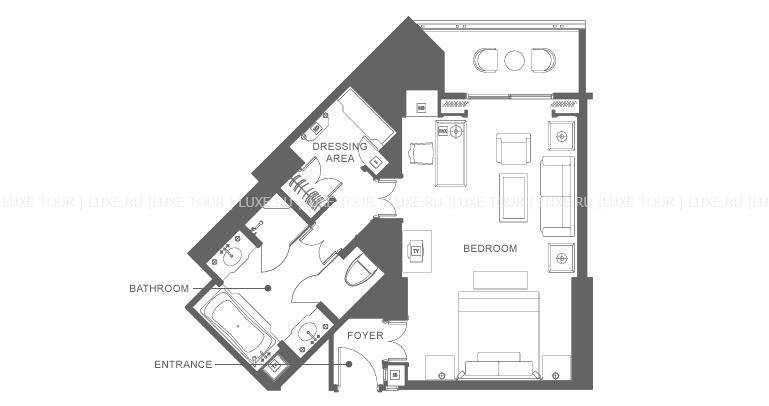
Deluxe Room:
45-47 м2. Состоит из спальни с кроватью king-size или двумя кроватями twin, ванной комнаты. Максимальное размещение – 3 человека.
План номера
Проверить наличие мест и цены
Grand Deluxe Room:
45-47 м2. Состоит из спальни с кроватью king-size или двумя кроватями twin, зоны отдыха, ванной комнаты, гардеробной. Максимальное размещение – 3 человека.
План номера
Проверить наличие мест и цены
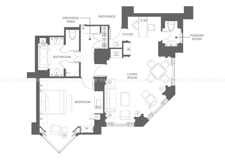
Deluxe Suite:
74 м2. Состоит из спальни с кроватью king-size или двумя кроватями twin, гостиной, обеденной зоны, ванной комнаты, гардеробной. Максимальное размещение – 3 человка.
План номера
Проверить наличие мест и цены
Grand Deluxe Suite:
74 м2. Состоит из спальни с кроватью king-size или двумя кроватями twin, гостиной, рабочей и столовой зоны, ванной комнаты. Максимальное размещение – 3 человека.
План номера
Проверить наличие мест и цены
Premier Suite:
84 м2. Состоит из спальни с кроватью king-size, гостиной, столовой зоны, мини-кухни, ванной комнаты, гардеробной, террасы. Максимальное размещение – 3 человека.
План номера
Проверить наличие мест и цены
The Thai Suite:
150 м2. Состоит из спальни с кроватью king-size, гостиной, гардеробной, мини-кухни, ванной комнаты. Максимальное размещение – 3 человека.
План номера
Проверить наличие мест и цены
The Terrace Suite:
190 м2. Состоит из спальни с кроватью king-size, гостиной, рабочего кабинета, столовой, кладовой-кухни, гардеробной, ванной комнаты, меблированной террасы и джакузи. Максимальное размещение – 3 человека.
План номера
Проверить наличие мест и цены
The Grand Terrace Suite:
240 м2. Состоит из двух спален с кроватью king-size и двумя кроватями queen-size, гостиной, столовой, ванной комнаты, меблированной террасы с джакузи. Максимальное размещение – 5 человек.
План номера
Проверить наличие мест и цены
The Duplex Suite:
330 м2. Состоит из трех спален с кроватью king-size и двух кроватей queen-size, гостиной, двух рабочих кабинетов, столовой, кладовая, трех ванных комнат, двух террас (на одной есть джакузи). Максимальное размещение – 5 человек.
План номера
Проверить наличие мест и цены
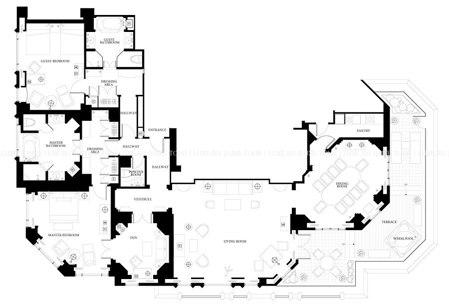
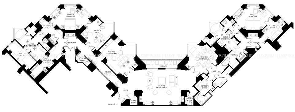
The Peninsula Suite:
364 м2. Состоит из двух спален с кроватью king-size и двумя кроватями twin, гардеробной, гостиной, рабочего кабинета, столовой, комнаты для дворецкого, спортивного зала, двух ванных комнат, меблированной террасы. Максимальное размещение – 5 человек.
План номера
Проверить наличие мест и цены
Внимание:
Фотографии представленных на сайте номеров дают общее представление о каждой категории номерного фонда гостиницы. Номера могут отличаться по метражу, цветовому решению, планировке, наличием/отсутствием балкона и т.п. Конкретный номер становится известен при заселении гостя в гостиницу.
Бонусы. Скидки. Подарки
Узнать больше

Anantara Siam Bangkok
5*
Aman Nai Lert Bangkok
5*